Indian Lake

https://www.jwrighthomedesign.com/web/image/product.template/324/image_1920?unique=8b4b178

Details: 3,670 Sq Ft, 4 Bedrooms, 4 Baths

2,120.00 2120.0 USD 2,120.00

0.00

Not Available For Sale

  • Plan Package

This combination does not exist.

Add to cart

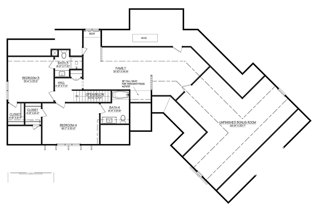
Floor Plan Features of the Indian Lake


Specifications


Floors: 2
Bedrooms: 4
Bathrooms: 4.0
Foundation(s): Crawlspace, Slab

Square Feet


Main Floor: 2,121
Upper Floor: 1,549
Total Conditioned: 3,670
Front Porch: 193
Rear Porch: 522

Dimensions


Width: 88'-11"
Depth: 70'-10"

Construction



Features


Kitchen: Island, Snack, Pantry
Master Suite: Tub, Double Sink, Shower, Porch, Private Toilet, Walk-in Closet
Additional: Fireplace, Porch, Summer Kitchen, Bonus Room

Garage


Type Size
Attached 3 - Stall

Description


The Indian Lake plan was inspired by a growing family and an incredible site on Indian Lake. The open floor plan, that is great for entertaining, is designed for an active family. The ideal setting is lots that are flat or gently sloping from right to left.

The home features a large open living space ideal for entertaining. A large back porch with outdoor kitchen, vaulted ceiling, TV location or optional fireplace. For a demanding family there is large bedrooms, spacious mud room, laundry near garage and kitchen, and second floor family area. The main level guest room can also function as a study, which is convenient in today’s world.

Features:
• Three Car Garage
• Mud Room
• Open Floor Plan
• Walk in Pantry
• Laundry Near Garage with Exterior Entry
• Casual Dining
• Back Porch with Kitchen
• Bonus Room

CAD File
Source drawing files of the plan. This package is best provided to a local design professional when customizing the plan with architect.

PDF Plan Set
Downloadable file of the complete drawing set. Required for customization or printing large number of sets for sub-contractors.

Construction Set
Five complete sets of construction plans, when building the house as-is or with minor field adjustments. This set is stamped with a copyright.

Pricing Set
Recommended for construction bids or pricing. Stamped "Not For Construction". The purchase price can be applied toward an upgrade to other packages of the same plan.

Planning Set
For planning purposes only and Stamped "Not for Construction." This set is ideal for planning modifications or verifying furniture sizes in rooms.